云南大理55平米小型医药冷库工程案列,该案例于2022年3月5日制定。主要用来存放药剂、注射液、中药等,因此在设计上是1间738立方的冷冻库。
项目类别:医药类
要求温度:-25℃
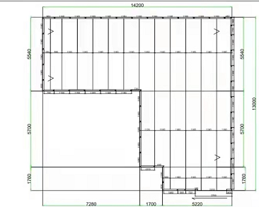
项目尺寸:14.2*13*4m

项目配置:
1、配备了RFC系列压缩机机组380v、DD-160系列普凌冷风机。
2、冷库采用100mm厚度的聚氨酯,五面体,地面采用100mm挤塑板。
3、冷库配备了1扇聚氨酯左开中型平移门,尺寸在3900*2760mm。
4、风幕机2台(1200mm)、库灯12盏。
5、地址:云南大理
6、安装方式:库顶吊钢丝绳
客户评价:
听他们建议做了一个55平米的冷库,性价比还多高的,费用也不贵,这一套制冷设备不错,因为我们是医药类,所以需要,挑了很多家,最后选中这家,东西很好。
